Il progetto dell’impresa non ti piace? Chiama l’architetto! Quando si compra una casa in costruzione può capitare che le soluzioni proposte e il capitolato non soddisfino. Con l’aiuto di un professionista, però, spazi, materiali e finiture si possono riprogettare al meglio. Guarda qui! Un vecchio maso nel centro del paese di Appiano (BZ) viene recuperato …
nuovi progetti
Come sfruttare i dislivelli in una villa di due piani
Quello che sembra un vincolo può diventare uno stimolo: nasce così l’idea di spostare la cucina al livello ammezzato, per renderla parte del grande living sul quale si affaccia, restandone però autonoma Una villetta bifamiliare grande ma con una conformazione particolare: ogni piano è sfalsato su due livelli. Zona giorno, cucina, due bagni, studio e …
Se c’è un buon progetto… non esistono spazi difficili!
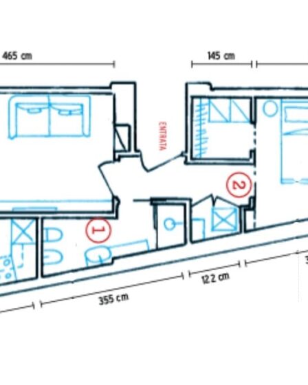
La pianta trapezoidale rendeva questa casa poco sfruttabile, ma l’esperienza dell’architetta ha permesso di ricavare cabina armadio e micro lavanderia, dando anche più spazi0 al bagno. Un progetto da studiare! Un bilocale luminoso grazie alla doppia esposizione ma dalla forma a trapezio che non lascia molta scelta nella riorganizzazione degli spazi. Il proprietario chiama l’architetta …
Maxi cucina o cabina armadio? 1 ristrutturazione, 2 progetti
Un bravo architetto offre sempre più proposte progettuali, anche quando il committente ha le idee chiare. In questo bilocale una zona di passaggio mal sfruttata diventa uno spazio prezioso nel living o in camera. Quale preferisci? Un bilocale con doppio affaccio e un piccolo balcone: la prima casa di una nostra giovane lettrice. Gli impianti …
Nuovi progetti: eliminando l’ingresso il living raddoppia
Un piccolo bilocale in un quartiere vivace di Roma: la nostra lettrice Laura lo acquista anche se gli spazi non rispondono alle sue esigenze (un ingresso a corridoio, un micro salotto e una camera grandissima) con l’idea di farlo ristrutturare all’architetta CF style Sara Edalatkhah che con il giusto progetto lo rende molto più bello …
Nuovi progetti: da bilocale a trilocale per la vendita
È difficile da credere, ma con un progetto mirato è stato possibile ricavare una camera in più e un piccolo studio, anche con questa metratura. È bastato eliminare l’ingresso e ridimensionare il living In cerca di un appartamento da ristrutturare e rivendere, Armando si imbatte in un bilocale i cui spazi erano stati disegnati in …
Nuovi progetti: ricostruire in… diagonale!
Un bilocale con un ingresso fin troppo grande che oltretutto separa la cucina dal soggiorno e il bagno dalla camera: la proprietaria chiama l’architetta CF style Roberta Pradella perché ridisegni gli spazi in base alle sue esigenze. Le richieste? Un’ampia zona living con angolo cottura, la camera in cui inserire il suo armadio a 5 …
Nuovi progetti: rivoluzione in ingresso
Spostando l’ingresso direttamente sulla zona giorno e scambiando cucina e cameretta, questo appartamento d’epoca ha guadagnato un bagno e una cabina armadio in più… e la cucina a vista ha persino la penisola! Una giovane coppia di lettori di CasaFacile ha acquistato un trilocale per andare a convivere. L’esposizione è praticamente tripla e i soffitti …
Nuovi progetti: senza corridoio ora c’è spazio per un grande living
Se la casa è medio-piccola ogni centimetro è prezioso e un lungo corridoio ne spreca tanti. Qui la sua eliminazione ha suggerito di unire anche salotto, cucina e ripostiglio per creare un open space ampio, funzionale e luminoso Una casa dotata di affacci su tre lati è praticamente un sogno: per questo ad Anna e …
Nuovi progetti: quando è utile sacrificare il corridoio
Un piccolo appartamento in una bella zona di Roma: è molto luminoso grazie al doppio affaccio ma la distribuzione interna è del tutto sbagliata, con camera e bagno vicino all’ingresso e un inutile corridoio che porta alla zona giorno con cucina separata. La futura proprietaria per fare una valutazione di una possibile trasformazione chiama l’architetta …










